發布時間:2022-10-31閱讀:
2022“金住獎-中國居住空間設計年度評選”活動正進入尾聲,百杰居住空間設計師名單也將在下旬發布公告,讓我們一起期待設計周上的設計盛宴,見證居住空間設計的蓬勃新生。
金住獎認為“房子是用來住的,不只是用來看的”,倡導“做有溫度的居住空間設計”,并以業主宜居指數作為評判標準。
“做有溫度的居住空間設計”,這與華鵬陶瓷29°柔光傳遞的理念相契合,一直堅持做有愛有溫度的設計,精心打磨,調試出最適宜的光澤度,打造自然舒適的居住空間,未來,也將與更多設計師一起探索29°柔光生活。
陶瓷一線品牌華鵬一直專注于柔光磚領域,對29°柔光的持續輸出“熱愛”,29°柔光已成為華鵬的血脈符號,歷經五代產品,始終圍繞用戶需求,深層挖掘每一個層面,在柔光領域一直具有前瞻性,以國際化的產品格局去把脈設計風向,重塑產品價值。

《家思》——原本的樣子
在一起講很多故事,聊很多天
本期分享成都設計師易成文的作品《家思》,原始戶型是一個70㎡的緊湊三室一廳結構,每個空間都顯得擁擠局促,使用率低,實際的居住體驗并不理想。根據屋主的實際需求,在整體的空間格局上打造出一個公共空間流暢開闊,私人空間配套齊全的舒適兩人居,增加空間的質感和舒適度,讓小戶型實現多元化。
整體設計采用極致簡約的原木風,溫馨而簡單,它沉浸在靜止和平靜中,他說,他們在設計創造出一個有該有的光,有該有的溫度的空間,將家“原本的樣子”交予屋主。

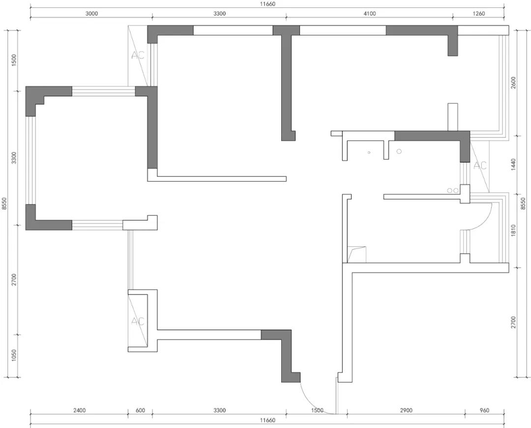
原始結構圖

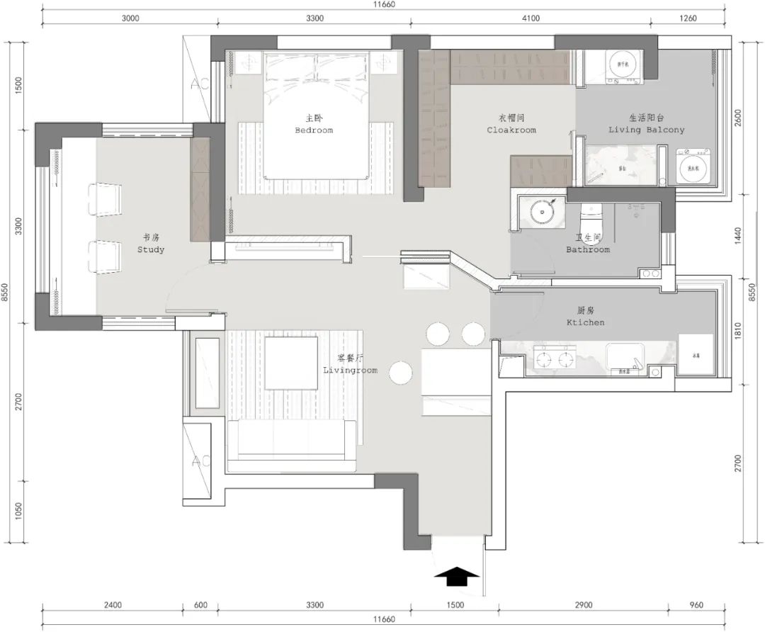
平面布置圖
這與他的設計理念“用好每一平,做適用的設計”一樣,樸實無華,這也是生活原本的樣子。
原木質感,真實而有溫度





客廳
客廳的整個空間自然、質樸、素雅,采用經典的原木+灰色的沙發+原木墻板來打造,給人一種清新淳樸的視覺感受。摒棄過多的裝飾,不刻意追求新奇的視覺感受,散發出一種溫馨自然的舒適感,為屋主營造一種歸屬感和恰到好處的煙火氣,


入戶玄關處的設計恰到好處,大塊的琉璃玻璃提升了空間的氣質及神秘感,在玄關處的背面設置一個小而精美的餐桌,呈現出別有不同溫馨氛圍。



整個廚房空間雖然不大,采用直線型設計,通鋪的灰色柔光磚讓整個空間質感提升,簡約又安靜,櫥柜的門板,選擇實木刷木蠟油,保留原始樸素的質感。
最大的特點是擁有落地窗,光線明朗, 在做飯的時候可閑看庭院風景,好不愜意。



書房的裝修設計在色調上依然采用原木色與留白的設計手法,整體氛圍簡約大方,靠窗做了雙人書桌,可供兩人辦公學習,一面墻做了開放+封閉式書柜,既能滿足收納需求又能展示物品。



主臥沿用灰色和原木色作為空間的主色調,室內并無冗雜的設計,以簡單的居室配置打造安逸、舒適的休憩氛圍。
內設一個實木衣柜,以琉璃玻璃門為隔斷的衣帽間,呈現一個質感系空間,體現主人的對于生活品質的要求。


衛生間干濕分離,高級灰色瓷磚墻地通鋪,琉璃玻璃分割淋浴區和馬桶區,光線穿透無阻,整潔又美觀。

設計師易成文
項目名稱 |:家思
項目地址 |:四川·成都
項目設計師 |:易成文
設計風格 |:現代簡約·原木風
項目面積 | :70平方米
設計機構 | :成都青木設計
完工攝影 | :易成文
全國各地的HOPO精英7月23日齊聚華鵬陶瓷佛山總部開展為期三天三夜的封閉式高強度培訓。在7月23-25日這三天天到場的HOPO精英將接受魔鬼式嚴酷的HOPO營銷課程。
經過自然滋養與消長的天然木材,保留著濃厚的歲月印記,凹凸的木紋質感愈加明顯,一輪一圈成就木材獨一無二的象征與標識,這是自然的饋贈與禮贊!
2014年2月28日,有著中國陶瓷行業奧斯卡之稱的中國陶瓷行業新銳榜正式揭曉,華鵬陶瓷“29柔光石材”被授予年度最佳產品。